Casa Zafit
Gândită cu simplitate și responsabilitate, dar și cu eficiență și generozitate, Casa ZAFIT urmează să adăpostească o zonă cât mai largă de depozitare pentru materiale de construcții, împreună cu un atelier, câteva birouri pentru echipa administrativă și o zonă de locuit.
Gândită cu simplitate și responsabilitate, dar și cu eficiență și generozitate, Casa ZAFIT urmează să adăpostească o zonă cât mai largă de depozitare pentru materiale de construcții, împreună cu un atelier, câteva birouri pentru echipa administrativă și o zonă de locuit.
TIP
Arhitectură ● Multifuncțional
Arhitectură ● Multifuncțional
PROGRAM
Atelier, Birouri și Locuință
Atelier, Birouri și Locuință
LOCALIZARE
Sat Uricani, com. Miroslava,
jud. Iași, România
Sat Uricani, com. Miroslava,
jud. Iași, România
SUPRAFAȚĂ UTILĂ
250mp
250mp
BUGET
privat
privat
DATA
2022
2022
STATUS
În execuție
În execuție
„La ZAFIT, prețuim cooperarea și tratăm orice proiect ca un proces de co-creare în care beneficiarul și colaboratorii participă activ pas cu pas în luarea deciziilor. Lucrăm cu și pentru oameni.”
Actul de a proiecta nu presupune numai desen, ci și construcție per se. Orice proiect bun are nevoie de rigoare și complexitate atât în desen precum execuția pe șantier. Ne bucură ori de câte ori reușim să construim pentru oamenii care, la rândul lor, construiesc alături de noi. Am lucrat în multe dintre proiectele noastre cu ZAFIT și am făcut echipă bună de fiecare dată. Așa am ajuns să proiectăm noul lor sediu, o casă-birou-atelier, pe un teren lung și foarte îngust, imediat lângă pădurea Uricani din Iași.
plan de situație

Situat între dealuri, terenul are latura lungă orientată spre pădure, dar și spre soare. Astfel, casa ocupă integral aria edificabilă a terenului. Am orientat toate spațiile de birouri și de locuit spre deschiderea cea mai frumoasă — pădurea — iar zonele tehnice spre vecinul dinspre nord.





︎︎︎concept
![]()

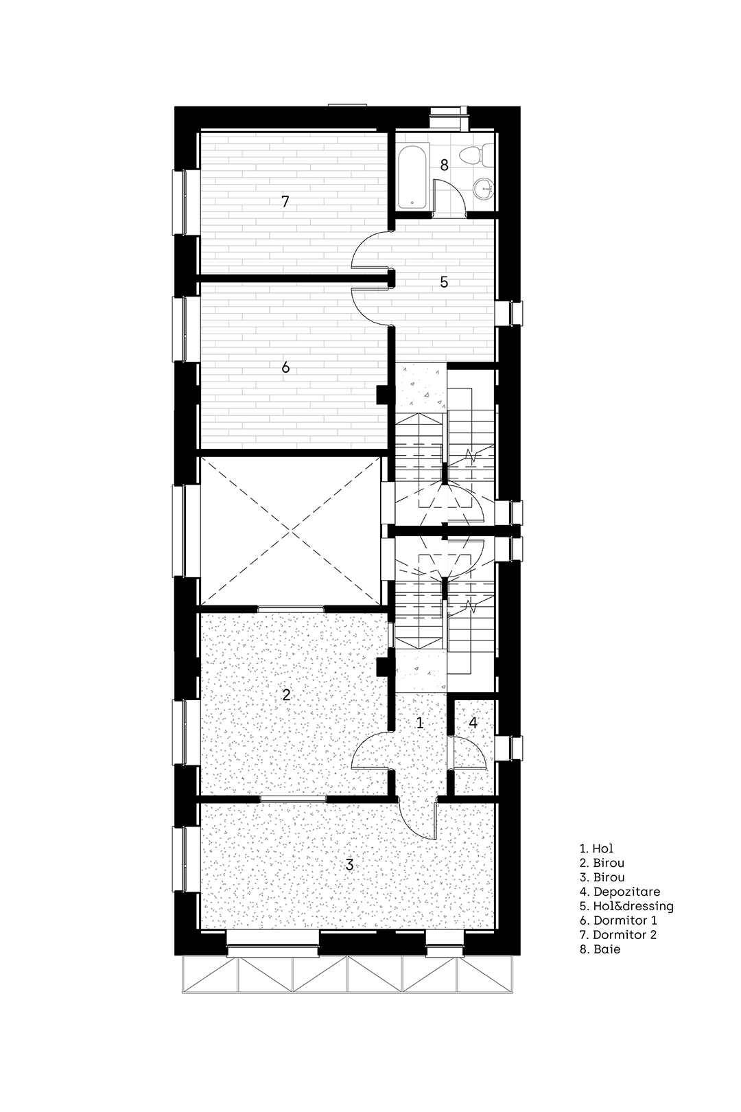
Clădirea este compusă riguros, din trei travei egale. Funcțiunile sunt dispuse simetric deasupra parterului, iar birourile înspre nord-vest și zona de locuit înspre sud-est. Funcțiunile principale: depozitarea, atelierul, spațiile de birou și spațiile de locuit au ghidat împărțirea clădirii în trei zone distincte, atât pe verticală, cât și pe orizontală.
Parterul ocupat de atelierul-depozit, iar spațiile de birouri și de locuit primesc câte o travee la parter și la mansardă. Zona dintre spațiile de lucru și spațiile de locuit este un zonă buffer, respectiv un play space la etaj și terasă la mansardă, unde există o terasă de pe care se poate admira întreaga pădure din Uricani.



Golul din miezul clădirii aduce lumină naturală în spațiul de depozitare de la parter și face loc unui gest de generozitate și răsfăț pentru întreaga echipă ZAFIT, respectiv un macro-hamac cu privirea spre pădure.


Cu un aspect mineral, de rocă șlefuită, casa se integrează în contextul ei printr-un contrast care are sens. Baza-parter este finisată cu o tencuială reliefată, periată în nuanță discretă de gri deschis, iar registrul superior primește o tencuială decorativă simplă în aceeași nuanță.
Învelitoarea deschisă la culoare completează imaginea exterioară, în timp ce finisajele exterioare exprimă subtil organizarea interioară a clădirii.





Casa ZAFIT este un exercițiu de echilibru între muncă și locuire. Granițele dintre cele două vor fi când clare, când confuze, la fel ca povestea oricărui antreprenor pasionat care visează la mai bine.







︎
ECHIPA ARHITECTURĂ
Alexandra Berdan
Ștefania Borș
Ancuța Ipati
COLABORATORI PROIECTARE
Structură ● EXPROSOV ing. Lucian Soveja
Instalații termice și sanitare ● VVS TECHNIK ing. Mihai Mahalu
Instalații termice și sanitare ● VVS TECHNIK ing. Mihai Mahalu
MANAGEMENT IMPLEMENTARE
ZAFIT
ZAFIT
ILUSTRAȚII
Alexandra Berdan
Ștefania Borș
TEXT
Oana Filip
Alexandra Berdan