Centrul pentru inovație Electra
TIP
Industrial ● Transformări și reutilizări
Industrial ● Transformări și reutilizări
PROGRAM
Reconversie spații de producție în spații de birouri
Reconversie spații de producție în spații de birouri
CLIENT
ELECTRA
ELECTRA
LOCALIZARE
Iași, România
Iași, România
SUPRAFAȚĂ UTILĂ
aprox. 4100 mp
aprox. 4100 mp
BUGET
privat
privat
DATA
2019
2019
STATUS
Concept
Concept
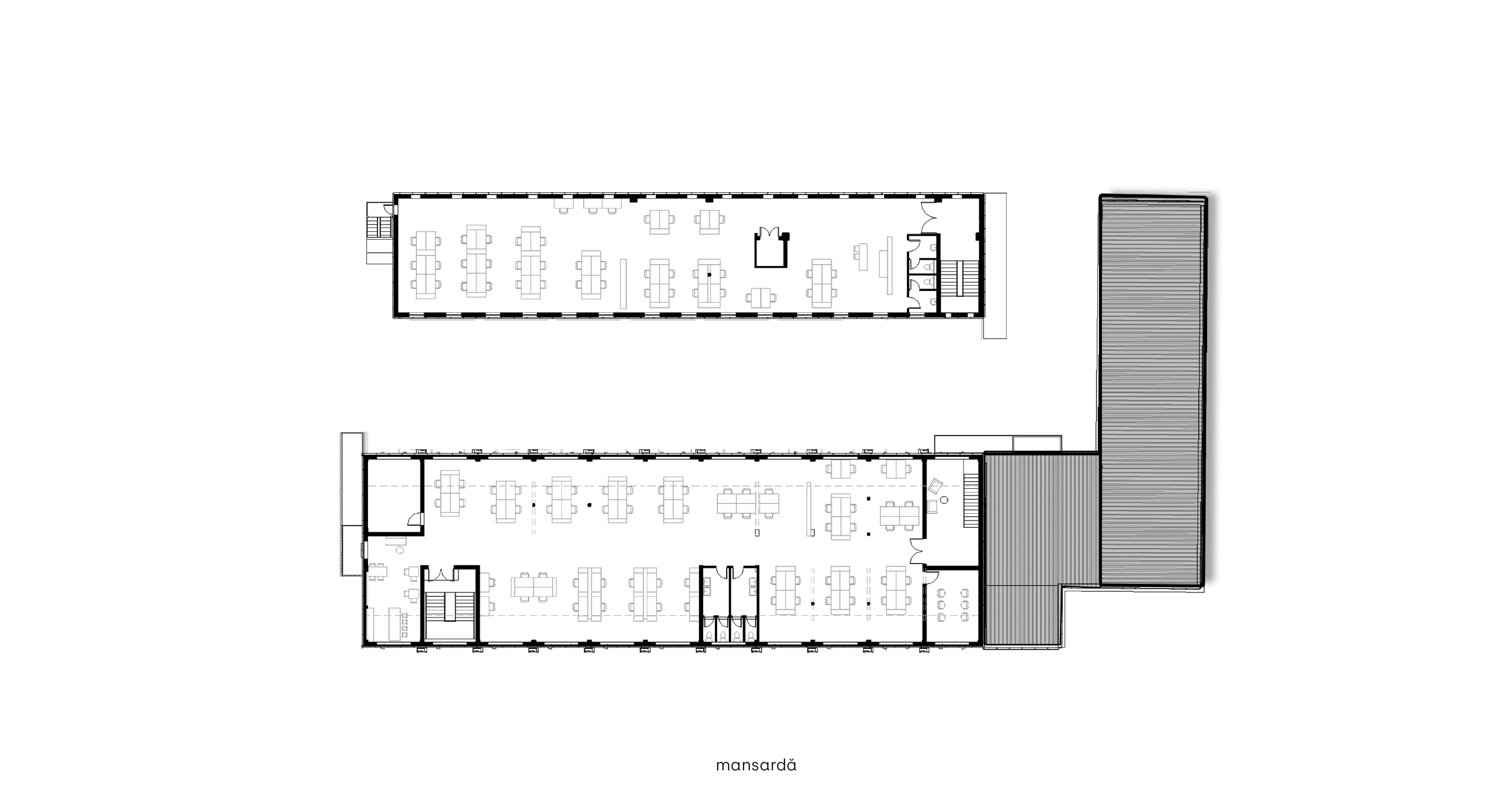
Centrul de Inovație - Electra propune reconversia unui ansamblu de clădiri din zona industrială a Iașului, în spații de servicii și birouri. Proiectul va livra aproximativ 4.000 de mp de spații comerciale și de birouri, situate în trei clădiri pe mai multe niveluri: 3 (corp A), 4 (corp B) si respectiv 2 (corp C).
Complexul este format din trei clădiri individuale, una izolată și două unite, care formează două curți interioare, una de aprovizionare și una de parcare.
Complexul este format din trei clădiri individuale, una izolată și două unite, care formează două curți interioare, una de aprovizionare și una de parcare.

Din considerente de buget și reducere la minim a timpului de execuție, intervențiile propuse sunt sunt simple, eficiente și urmăresc câteva direcții clare de îmbunătățire:


- Optimizarea clădirilor în sine prin termoizolare eficientă cu panouri tip sandwich, conformare la noile cerințe pentru protecție la foc și optimizarea fluxurilor in
terioare prin adăugarea de noi noduri verticale.
- Creșterea calității spațiilor interioare prin recompartimentare și modificări ale fațadelor. Schimbările sunt necesare doar pentru corpul de clădire dinspre stradă — primește ferestre noi, verticale, care să asigure, cu costuri minime, o relație orizontală a noilor spații de lucru cu exteriorul.
- Creșterea calității spațiilor exterioare prin curățarea ansamblului de construcțiile parazitare, transformarea curții de aprovizionare în spațiu de loisir cu vegetație înaltă. Prin noua propunere, accesul în fiecare corp devine ușor de indentificat.
- Îmbunătățirea imaginii ansamblului prin „îmbrăcarea” clădirilor în panouri termoizolante de culoare gri-argintiu și păstrarea imaginii șarpantelor ca referință la istoricul ansamblului.




situație inițială ︎
propunere ︎






Abordarea arhitecturală pentru întreg ansamblul a fost una a reutilizării eficiente a resurselor, cu intervenții și gesturi minime astfel încât ansamblul să capete mai multă noimă pentru viitorii beneficiari.
Toate intervențiile propuse au funcțiuni multiple:
- materialul ales pentru termoizolare este și finisaj nou pentru fațade;
- pergolele metalice protejează accesele și individualizează corpurile de clădire;
- nodurile verticale noi rezolvă probleme de evacuare și oferă accese secundare pentru diferitele etaje; dau flexibilitate de compartimentare și de închiriere a spațiilor;
- noua scară metalică a corpului B este un simbol în sine, un accent vertical și implicit totem al spațiului.
- culoarea albastru-cyan amintește de cromatica și funcțiunea vechiului ansamblu, și transformă signalistica exterioară într-un gest arhitectural în sine.











︎
CONCEPT ARHITECTURĂ
Alexandra Berdan
Ștefania Borș
Ancuța Costandache
ILUSTRAȚII
Ștefania Borș
Ștefania Borș
TEXT
Alexandra Berdan
Oana Filip