Interior ● Rezidențial ● Concept
Colțuri și cotloane
„Puteam prea bine altădată să găsim că mansarda e prea strâmtă, că e friguroasă iarna și încinsă vara. Dar acum, (...) mansarda este mică și mare, caldă și răcoroasă, totdeauna reconfortantă.” - G. Bachelard
„Puteam prea bine altădată să găsim că mansarda e prea strâmtă, că e friguroasă iarna și încinsă vara. Dar acum, (...) mansarda este mică și mare, caldă și răcoroasă, totdeauna reconfortantă.” - G. Bachelard
TIP
Interior ● Rezidențial
Interior ● Rezidențial
PROGRAM
Amenajare de interior
Amenajare de interior
CLIENT
privat
privat
LOCALIZARE
Iași, România
Iași, România
SUPRAFAȚĂ UTILĂ
92 mp
92 mp
BUGET
privat
privat
DATA
2024
2024
STATUS
concept
concept
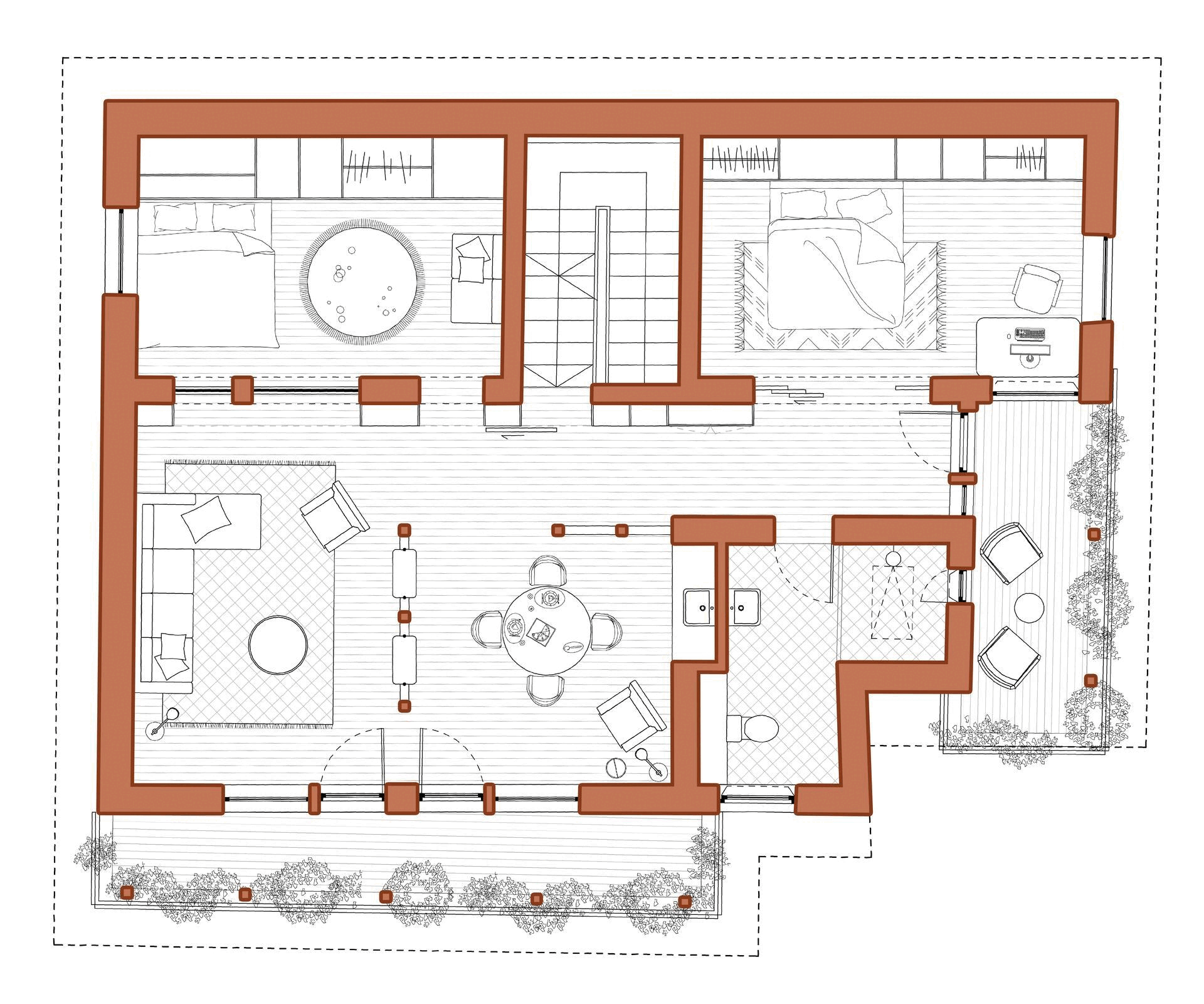
Mereu intrigante, deseori ivite ca spații reziduale sub acoperișuri, cu geometrii complexe și înălțimi discutabile, podurile și mansardele sunt terenuri prolifice de joacă arhitecturală.
În cazul casei din Copou, spațiul mansardei fusese lăsat nefinisat, păstrând urmele unei tentative de termoizolare întrerupte brusc.
În cazul casei din Copou, spațiul mansardei fusese lăsat nefinisat, păstrând urmele unei tentative de termoizolare întrerupte brusc.
Stâlpii de lemn lăsau cu greu să se citească coerența spațială, în timp ce grinzile din lemn de pe placa de beton făceau dificilă parcurgerea spațiului.
Pereții din lemn cu grosimi inegale, placările perforate din OSB, scoabele metalice și zonele cu înălțimi reduse s-au adăugau pe lista de neajunsuri care căutau un răspuns.
Pereții din lemn cu grosimi inegale, placările perforate din OSB, scoabele metalice și zonele cu înălțimi reduse s-au adăugau pe lista de neajunsuri care căutau un răspuns.
situație inițială ︎




În acest context, beneficiarii - o familie cu un copil mic - își doreau să un loc primitor unde să-și petreacă vacanțele atunci când revin în țară.
Dorința lor era să obțină un spațiu cât mai deschis, fără compartimentări clasice, amenajat minimalist - dar cald și cu personalitate.
Dorința lor era să obțină un spațiu cât mai deschis, fără compartimentări clasice, amenajat minimalist - dar cald și cu personalitate.
Pentru ca mansarda să fie confortabilă termic, a fost prioritar să-i îmbunătățim eficiența energetică.
Pereții și acoperișul au primit un strat generos de termoizolație, iar ferestrele au fost înlocuite cu unele mai performante.
Pereții și acoperișul au primit un strat generos de termoizolație, iar ferestrele au fost înlocuite cu unele mai performante.

Situația actuală nu ne-a permis să modificăm geometria acoperișului, însă spațiile atipice ale mansardei reușesc să ridice la fileu soluții neașteptate de locuire.
Distribuția funcțiunilor necesare și-a găsit loc printre grila de stâlpi din lemn.
Distribuția funcțiunilor necesare și-a găsit loc printre grila de stâlpi din lemn.
Acolo unde rezolvarea structurală a permis, au fost eliminați. Unde nu a fost posibil să renunțăm la ei, am încercat să-i integrăm în amenajare.

Cele două spații cu înălțimea cea mai redusă - situate de o parte și de alta a scării de acces - au devenit dormitoare, lăsându-i livingului zona cu înălțime mai generoasă.
Dormitorul matrimonial asimilează și un spațiu de lucru, în timp ce dormitorul copilului explorează diferite scenarii de joacă.
Dormitorul matrimonial asimilează și un spațiu de lucru, în timp ce dormitorul copilului explorează diferite scenarii de joacă.



Zona de dormit este delimitată parțial de cea de zi printr-un perete-mobilier, care include spații de depozitare închise sau deschise și accesorii care să țină ocupată atenția micului rezident.
Peretele-mobilier ce traversează întreg spațiul asigură nu doar necesarul de depozitare temporară, ci și un echilibru între nevoia de intimitate a dormitoarelor și dorința de a petrece timpul împreună, în familie.
Peretele-mobilier ce traversează întreg spațiul asigură nu doar necesarul de depozitare temporară, ci și un echilibru între nevoia de intimitate a dormitoarelor și dorința de a petrece timpul împreună, în familie.
Zona de relaxare și locul de luat masa sunt demarcate vizual de cele două leagăne și beneficiază de acces spre balconul înverzit.
Zona de zi include și o chicinetă echipată cu dotările strict necesare unei locuiri ocazionale.
Zona de zi include și o chicinetă echipată cu dotările strict necesare unei locuiri ocazionale.

Locuința temporară permite, cu îngăduință, unele abateri de la rigoarea locuirii clasice. Constrângerile și compromisurile sunt îmblânzite.
Deși uneori trebuie să fim atenți să aplecăm capul, colțurile și cotloanele mansardei devin parte din ceea ce înseamnă să fii în vacanță.






︎
CONCEPT
Anca Spînu
Alexandra Berdan
ILUSTRAȚII
FOTOGRAFII
Anca Spînu
Alexandra Berdan
Alexandra Berdan
TEXT
Georgiana Covaliu