Arhitectură ● Case ● Transformări și reutilizări
Peste lac și prin livadă
Tranziția de la oraș la experiența de locuire rurală devine mai blândă când noua locuință recreează frânturi din confortul urban lăsat în urmă.
Tranziția de la oraș la experiența de locuire rurală devine mai blândă când noua locuință recreează frânturi din confortul urban lăsat în urmă.
TIP
Arhitectură ︎ Case ︎ Transformări și reutilizări
Arhitectură ︎ Case ︎ Transformări și reutilizări
PROGRAM
Locuință unifamilială
Locuință unifamilială
CLIENT
privat
privat
LOCALIZARE
jud. Ialomița
jud. Ialomița
SUPRAFAȚĂ
142 mp
142 mp
BUGET
privat
privat
DATA
2024
2024
STATUS
Concept
Concept
Gândită inițial ca locuință de vacanță și neutilizată lungă vreme, casa de pe marginea lacului resimțea degradarea cauzată de lipsa mentenanței, dar și de deficiențele structurale.
Noii beneficiari, un cuplu (și 3 pisici) care alesese să facă schimbarea de la oraș la sat pentru a se putea bucura de natură, își doreau în primul rând ca lacul să fie pus în valoare.
Noii beneficiari, un cuplu (și 3 pisici) care alesese să facă schimbarea de la oraș la sat pentru a se putea bucura de natură, își doreau în primul rând ca lacul să fie pus în valoare.
Apoi, visau la o locuință luminoasă și ospitalieră, cu suficient loc pentru vizitatori, dar și pentru hobby-urile numeroase.
Lista lor de nevoi funcționale includea și spații ample de depozitare, precum și o strategie de amenajare a curții care să ofere cât mai multe contexte de relaxare, grădinărit și bricolaj.
Lista lor de nevoi funcționale includea și spații ample de depozitare, precum și o strategie de amenajare a curții care să ofere cât mai multe contexte de relaxare, grădinărit și bricolaj.
Procesul de re-arhitectură a casei a fost laborios.
Camerele erau subdimensionate, livingul era amplasat în zona cea mai întunecată a casei, iar orientarea cardinală a casei nu coincidea cu deschiderile spre priveliște.
Alcătuirea existentă a acoperișului și nevoia serioasă de consolidare au făcut mai practică înlocuirea lui totală, cu atât mai mult cu cât beneficiarii își doreau să transforme podul într-o mansardă locuibilă.
Camerele erau subdimensionate, livingul era amplasat în zona cea mai întunecată a casei, iar orientarea cardinală a casei nu coincidea cu deschiderile spre priveliște.
Alcătuirea existentă a acoperișului și nevoia serioasă de consolidare au făcut mai practică înlocuirea lui totală, cu atât mai mult cu cât beneficiarii își doreau să transforme podul într-o mansardă locuibilă.
Am încercat să aducem cât mai multă claritate spațiului, alterând cât mai puțin integritatea structurii. Am restrâns posibilitățile de intervenție la 4 soluții, comparând beneficiile și neajunsurile fiecăreia.
soluția aleasă
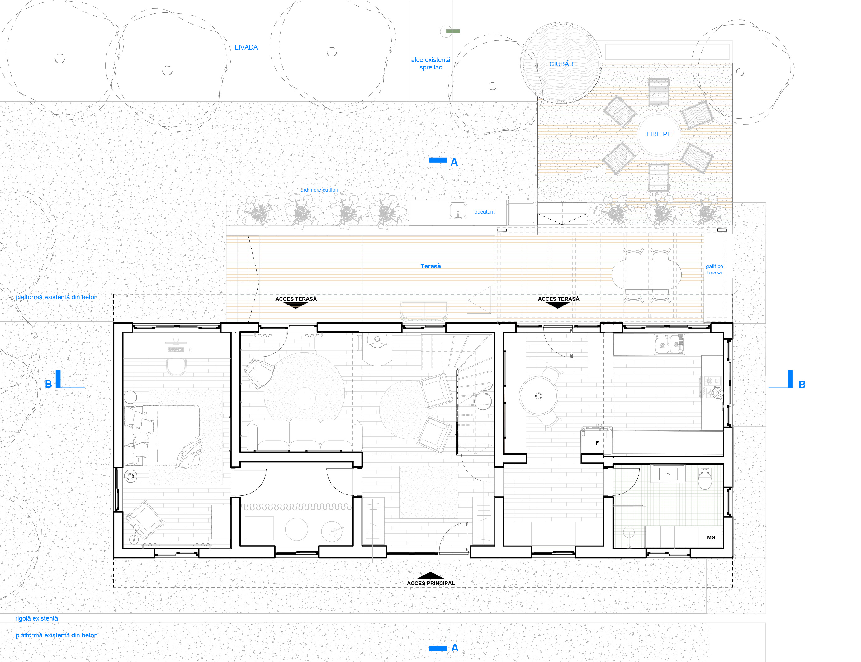
Soluția aleasă adaugă locuinței un modul, simetrizând volumul pe zona de acces. Camera de zi, diningul și bucătăria prioritizează orientarea către lac, în timp ce la viitorul etaj își găsesc loc două dormitoare și o zonă de lectură deschisă spre supantă.
Pentru a completa aporturile solare, am decupat un gol deasupra livingului, un gol care va aduce lumină dinspre sud, prin intermediul a trei ferestre de tip Velux.
Zonele de zi se extind către terasa parțial acoperită, continuându-se cu un spațiu de gătit spre livadă și firepit.
Zonele de zi se extind către terasa parțial acoperită, continuându-se cu un spațiu de gătit spre livadă și firepit.
Gospodăria este întregită de un atelier pentru meșterit cu depozitare, o mică seră și o grădină de legume, dar și de multe zone de tras sufletul.
Un hamac lângă atelier, un duș exterior printre pruni, o platformă în nucul dinspre lac, o masă pentru reuniuni de familie și un mic birou umbrit pentru lucrat de afară.
Parcursul existent, liniar către lac a fost păstrat, vegheat de felinare pe timpul nopții. La capătul său așteaptă un mic ponton din lemn, cu plase pentru relaxare și deck de stat la soare.





Nevoile și prioritățile moderne, dar și neajunsurile inițiale ale casei au condus la un proces de vindecare ce jonglează constant câștiguri și compromisuri, oferind - în final - multiple posibilități de explorare a vieții la țară.
︎
ARHITECTURĂ
Anca Spînu
Alexandra Berdan
ILUSTRAȚII
Anca Spînu
Andreea Rotariu
din arhiva beneficiarilor
TEXT
Anca Spînu
Georgiana Covaliu
