Interior ● Rezidențial ● În execuție
La plăcinte înainte!
- De câte bucătării este nevoie pentru buna funcționare a unei gospodării rurale?
- De toate.
TIP
Interior ● Rezidențial
Interior ● Rezidențial
PROGRAM
Amenajare dependințe
Amenajare dependințe
CLIENT
familia Olaru
familia Olaru
LOCALIZARE
sat Corhana, com. Dulcești, jud. Neamț
sat Corhana, com. Dulcești, jud. Neamț
DIMENSIUNE
50 mp
50 mp
BUGET
33.000 euro
33.000 euro
DATA
2025
2025
STATUS
În execuție
În execuție
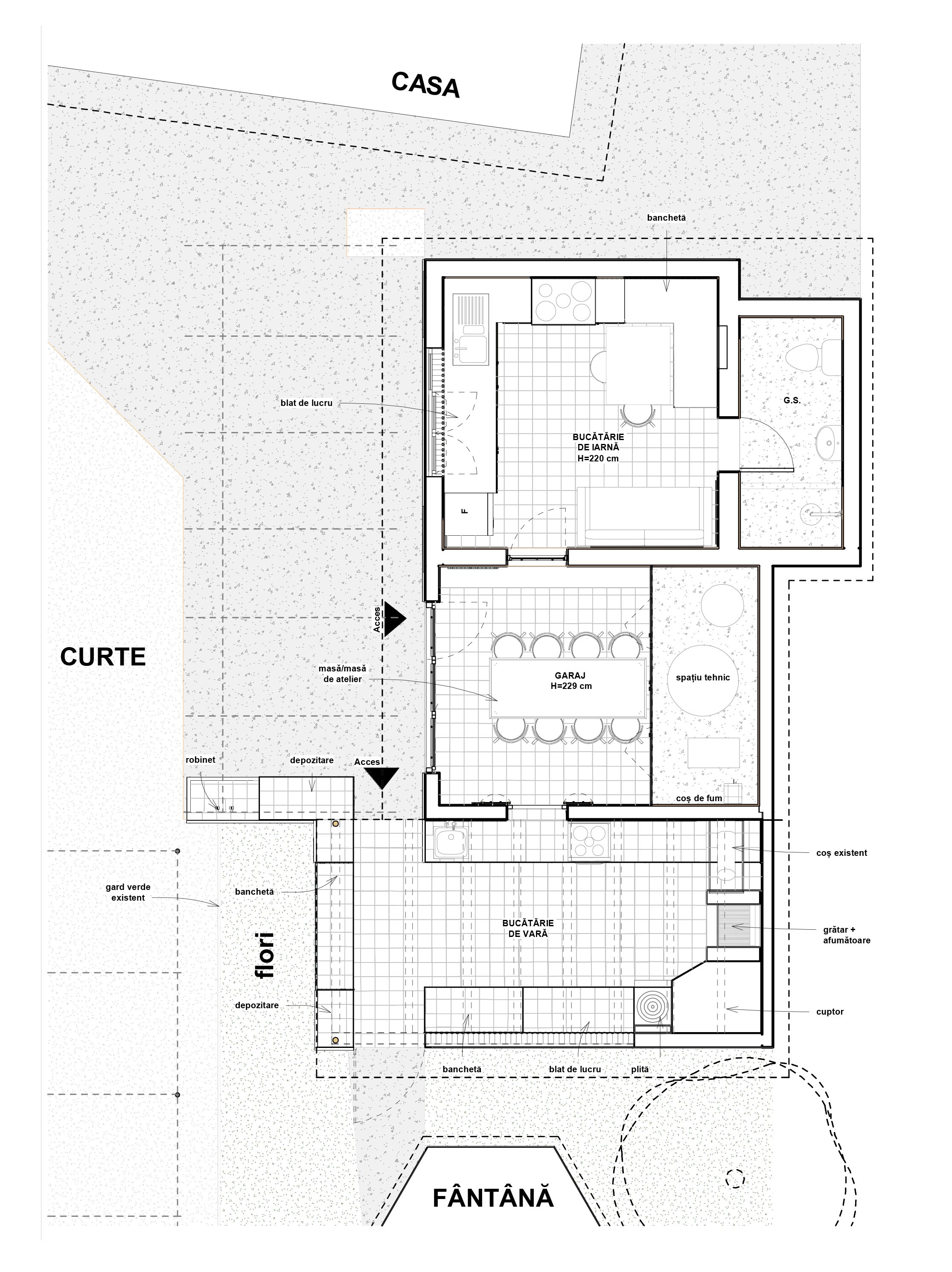
︎︎︎plan amplasament

În procesul de diagnoză al Casei Copilăriilor din Corhana ne-am pus inițial problema integrării unei bucătării în casa veche de lut, însă nevoia a fost imediat exclusă de bunici.
Lucrurile funcționează perfect cu bucătăria de iarnă, iar noi am hotărât să nu periclităm firescul lucrurilor (venim cu rezolvări la probleme care nu sunt).
La trei ani după finalizarea amenajării casei, ne-am îndreptat atenția spre dependințele gospodăriei: corpul compus din bucătăria de iarnă, garaj, bucătărie de vară și cișmea.
Așa cum ne-au mărturisit și proprietarii, forma și organizarea lucrurilor au fost schimbate și reluate de-a lungul anilor, căpătând noi adiții cu fiecare intervenție. Mai întâi a fost bucătăria de iarnă, iar restul e istorie… a vieții domestice.
Scopul nostru principal a fost să oferim bucătarilor casei un spațiu mai organizat de pregătire a bucatelor, cu suprafețe de gătit ample, spații care să permită mișcări nestingherite și pregătirea conservelor de iarnă, dar și zone de odihnă pentru toți cei care dau o mână de ajutor sau privesc curioși la cum se desfășoară treburile.
Primul pas a fost să eliminăm adiția din fața bucătăriei de iarnă, astfel încât să poată primi mai multă lumină și să integrăm o axă de parcurs între cele trei spații. Astfel, cele trei spații comunică acum facil.

Finisajele continuă limbajul casei, păstrând culorile exterioare de var și brâurile albe, dar și tavanele interioare placate cu lambriu din lemn.
Gresia terracotta din bucătăria de iarnă se diluează pe măsură ce traversează camerele, ajungând în bucătăria de vară să se împletească cu o gresie mozaicată deschisă la culoare.

Bucătăria de iarnă
este destinată pregătirii bucatelor preponderent în sezoanele cu vreme neprietenoasă, dar îngăduie și pauze scurte de la treburile gospodărești.


Garajul
se transformă în loc de luat masa și devine liant între cele două bucătării. Fereastra spre bucătăria de vară asigură un schimb comod de farfurii, totodată, păstrând legătura vizuală cu activitățile de acolo. Astfel, bucătarii nu sunt niciodată izolați de cei de la masă. Când vremea permite, masa poate fi scoasă sub pergola cu viță de vie.
Bucătăria de vară
este cea mai utilizată, de aceea ne-am orientat spre un mobilier buid-in, cu finisaje rezistente, cu acces facil către zona de grătar-cuptor-plită. În peretele opac ce dă spre fântână am integrat o fereastră generoasă, care nu face doar gătitul mai plăcut, ci permite beneficiarilor să arunce câte un ochi către poartă și traficul din drum.
Adiacent bucătăriei de vară am prevăzut o zonă cu banchetă, depozitări și cișmea, în acord cu nevoile gospodăriei.

Fluxurile de circulație devin mai clare, facilitând și legătura cu vechea fierărie care adăpostește beciul și cămara.
Spațiile sunt mai luminoase, iar legăturile vizuale dintre ele îndeamnă la discuții.

Cu intuiția că într-un viitor nu departe nouă va apărea și o a treia bucătărie în configurația casei din Corhana, le suntem recunoscători adevăraților designeri de experiențe culinare și familiale: celor care pregătesc cu spor sosuri și sucuri, copturi și fripturi, gemuri și dulcețuri și activează spațiile pe care le proiectăm.
︎
CONCEPT ARHITECTURĂ
Alexandra Berdan
Anca Spînu
EXECUȚIE
Mobilier personalizat
● Petru Olaru
● Petru Olaru
MANAGEMENT IMPLEMENTARE
George Olaru
ILUSTRAȚII
Anca Spînu
Anca Spînu
TEXT
Anca Spînu
Georgiana Covaliu
